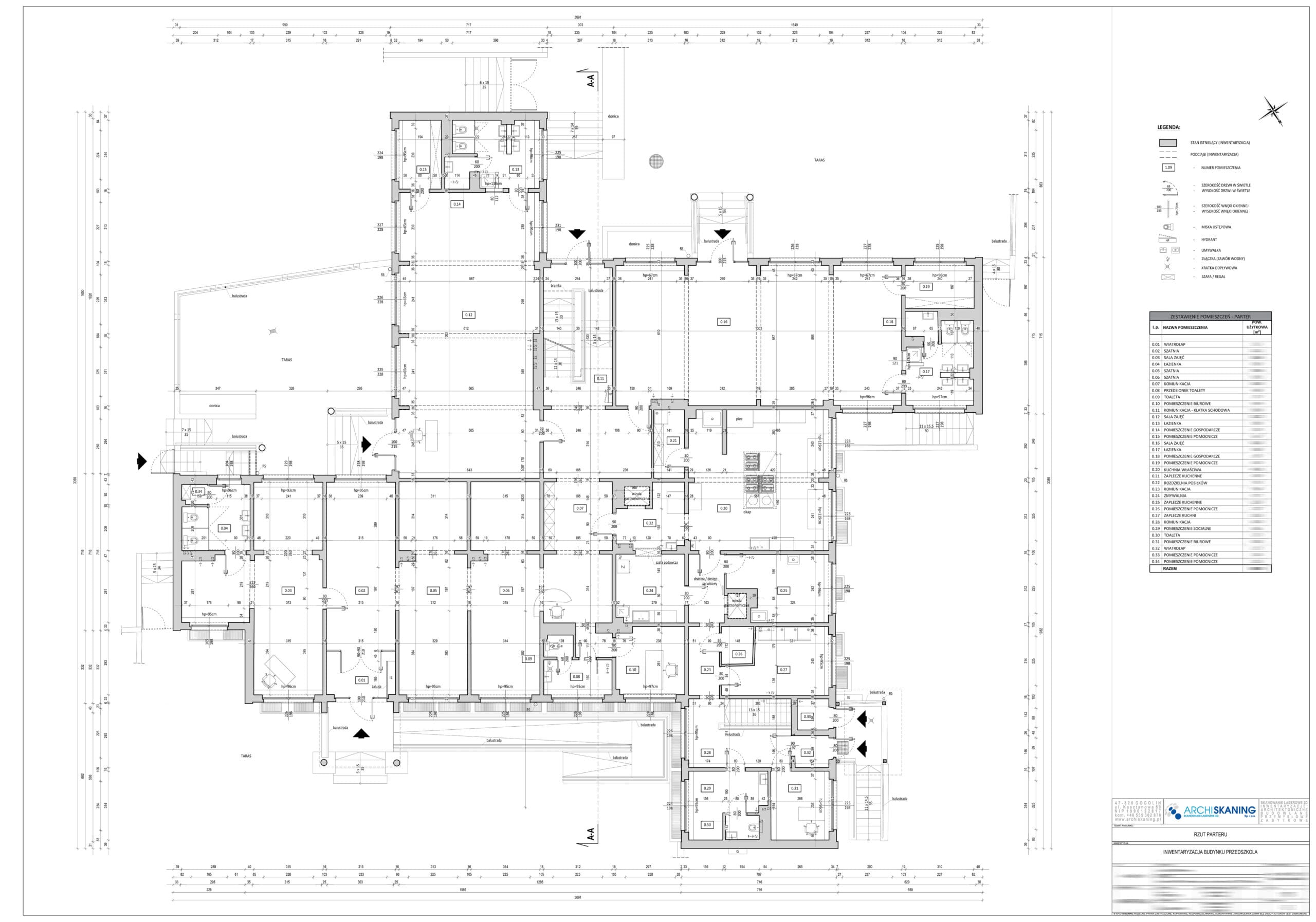
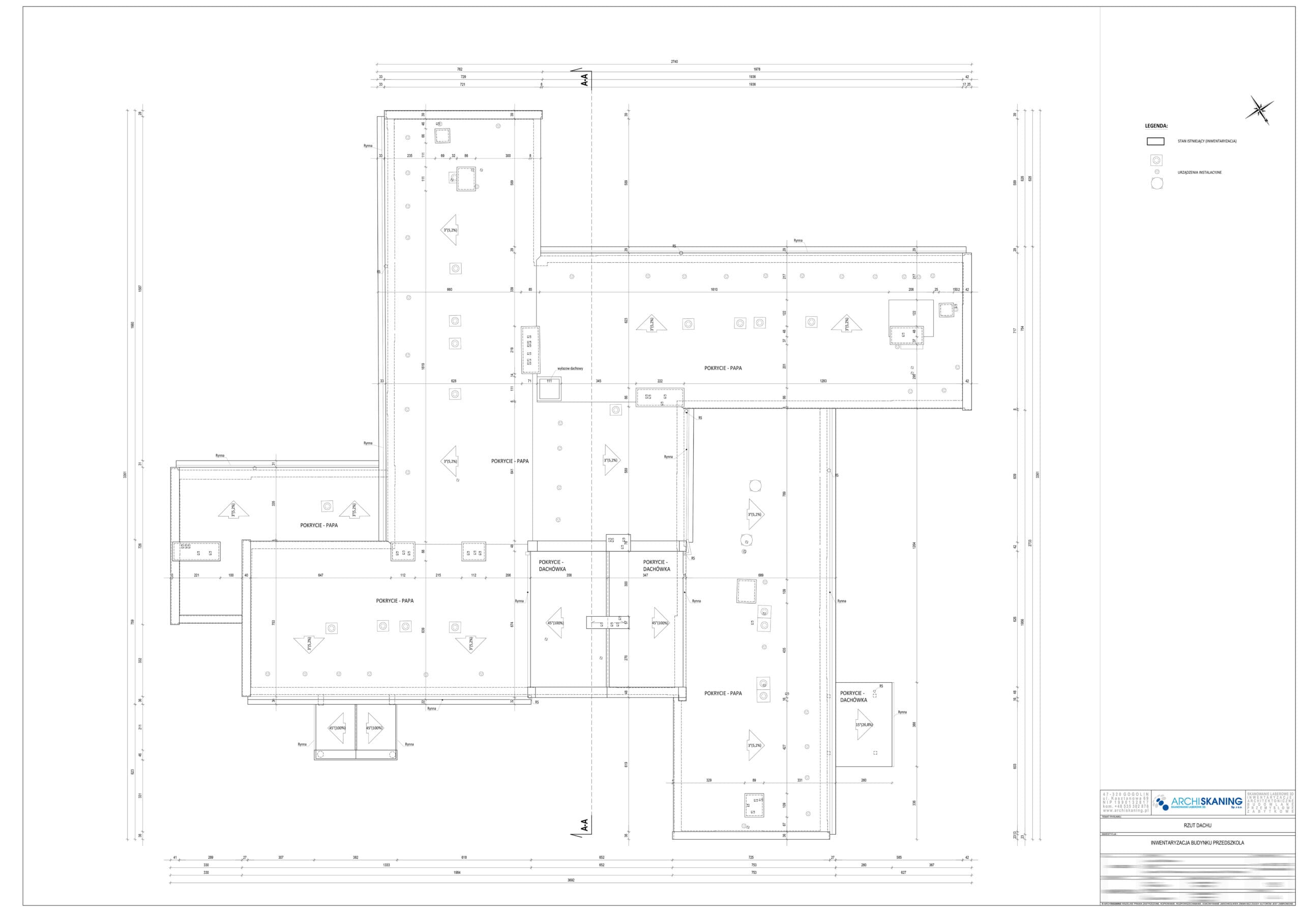
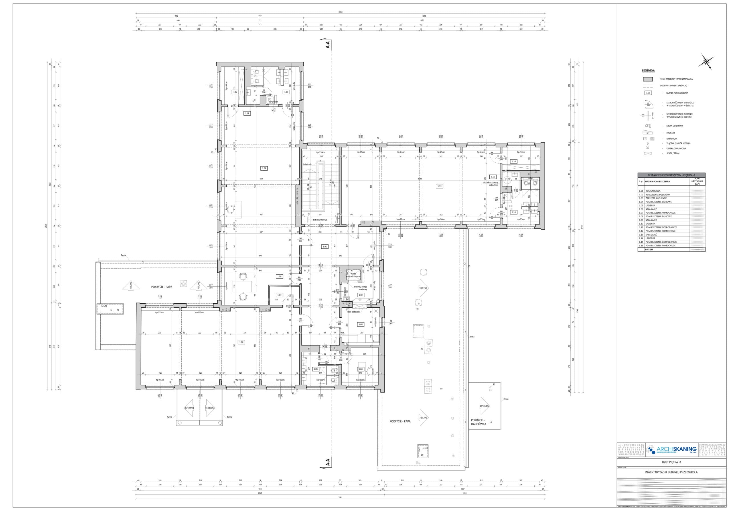
🏫 Murowana Goślina – Przedszkole | Skan 3D do projektu termomodernizacji
Zrealizowaliśmy kompletny skan 3D przedszkola w Murowanej Goślinie, będący podstawą do opracowania projektu termomodernizacji.
Zakres prac obejmował:
🔹 Skan 3D całego obiektu w skali odcieni szarości
🔹 Pełną dokumentację 2D: komplet elewacji, rzuty oraz przekrój
Całość opracowania została przekazana pracowni projektowej i posłużyła jako rzetelna baza do dalszych prac projektowych.
Precyzyjna inwentaryzacja to klucz do sprawnego i bezpiecznego procesu modernizacji budynku.



















