🏫 Jarocin – Zespół szkół i przedszkole | Inwentaryzacja
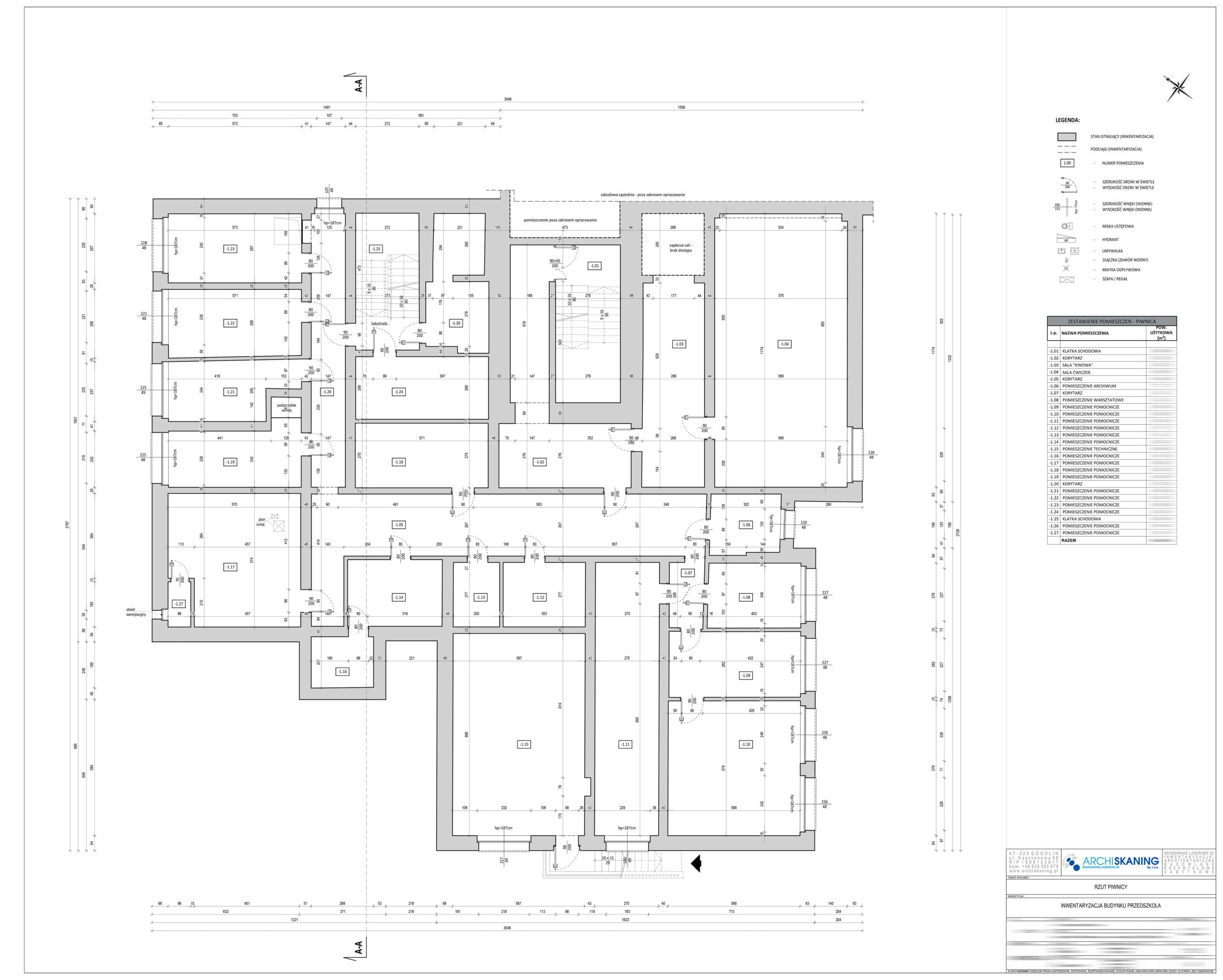
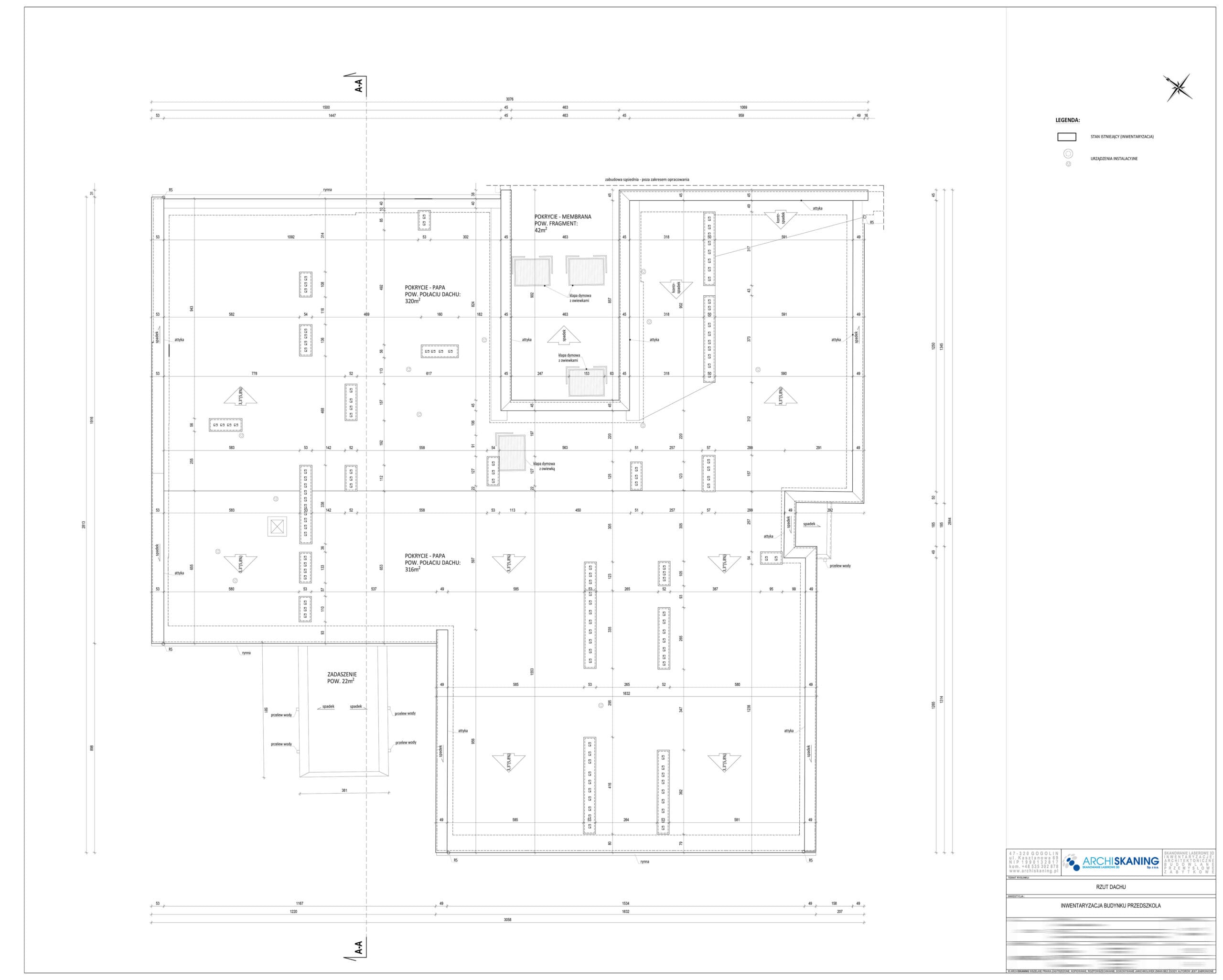
Zrealizowaliśmy kompleksową inwentaryzację zespołu szkół oraz budynku przedszkola w Jarocinie.
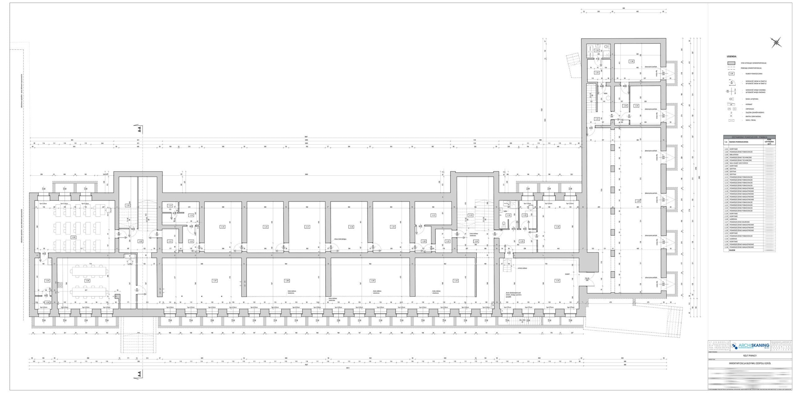
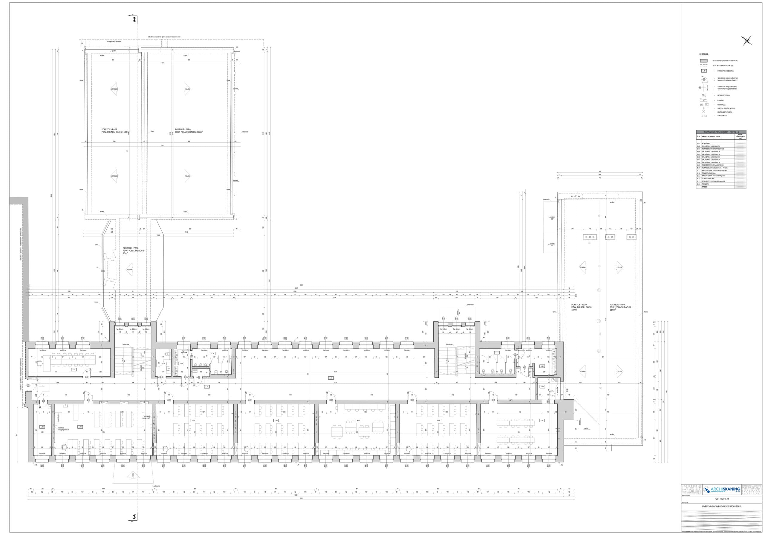
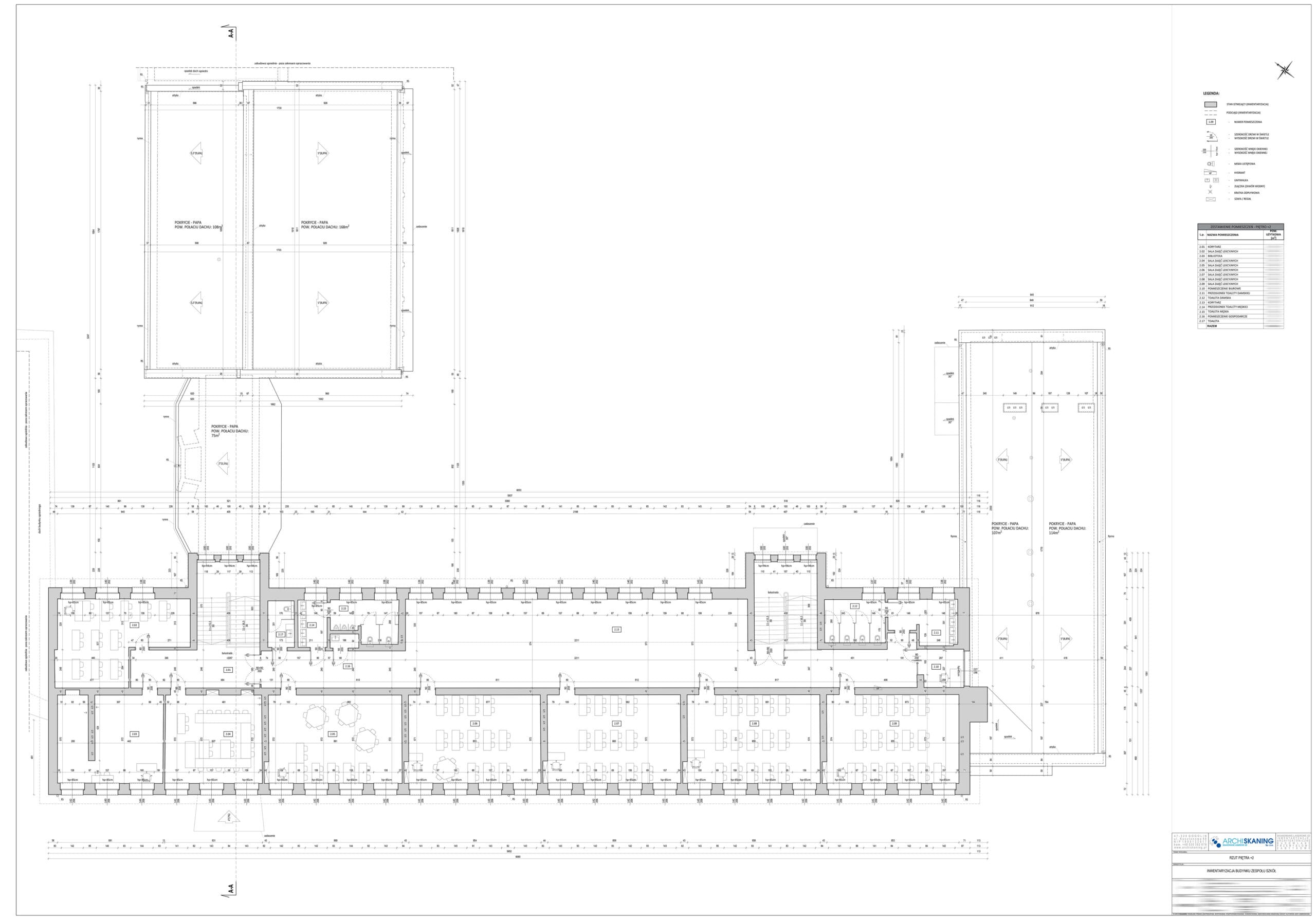
Zakres prac obejmował:
🔹 Pełny skan 3D obu budynków w skali odcieni szarości
🔹 Przygotowanie kompletnej dokumentacji technicznej: elewacje, rzuty oraz przekroje
Opracowana dokumentacja została przekazana pracowni projektowej i stanowiła podstawę do dalszych prac nad projektem termomodernizacji obiektów.
Dokładna inwentaryzacja to pierwszy krok do skutecznej modernizacji budynków.
























