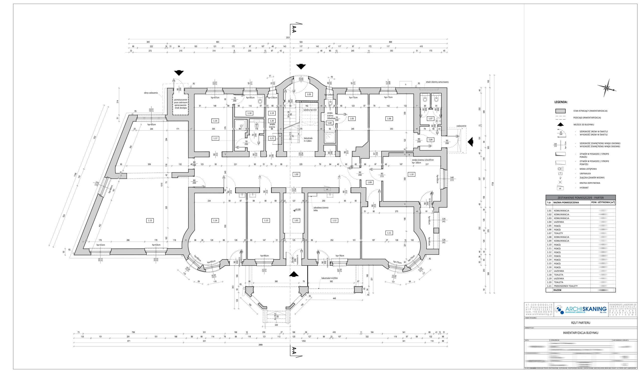
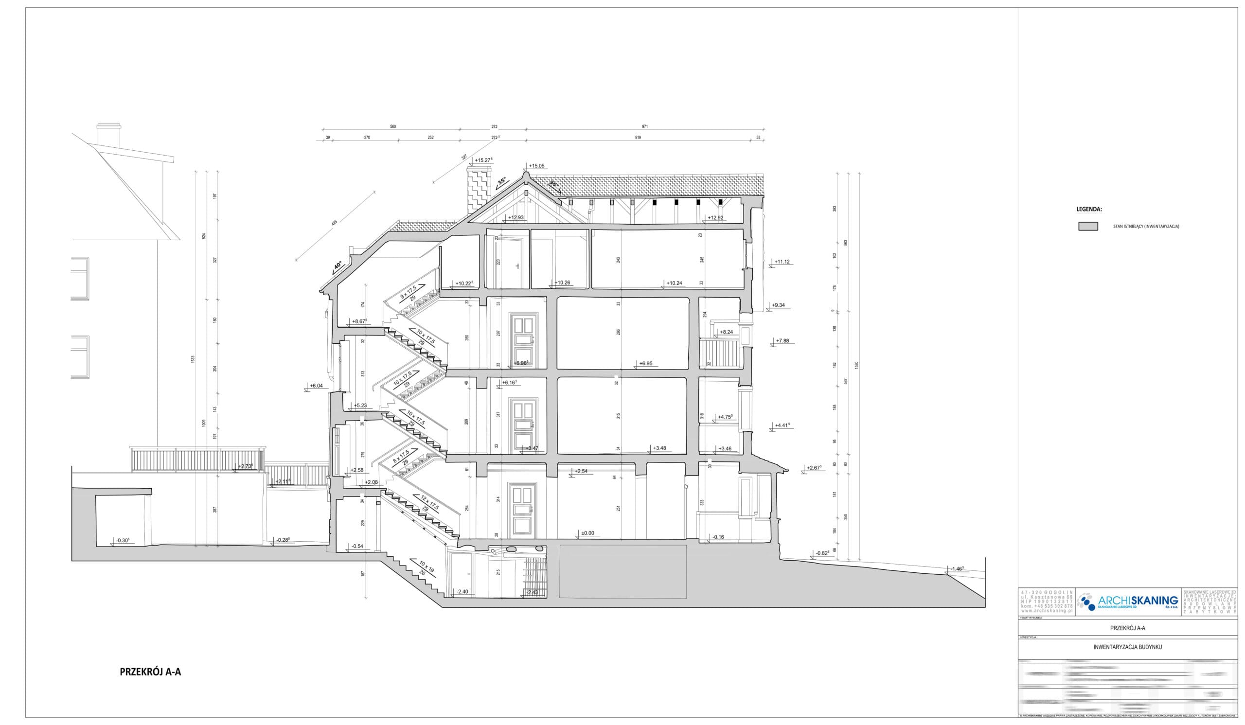
Zrealizowaliśmy kompleksowy skan 3D budynku w Polanicy-Zdroju, stanowiący solidną podstawę do dalszych opracowań projektowych.
Zakres prac obejmował:
🔹 Skan 3D całego obiektu w skali odcieni szarości
🔹 Pełną dokumentację architektoniczno-budowlaną: komplet elewacji, rzuty oraz przekrój
Opracowanie zostało przekazane pracowni projektowej i wykorzystane w dalszych pracach projektowych, zapewniając precyzyjne i wiarygodne dane wyjściowe.
Dokładny pomiar to pewny start każdego projektu.













